Project 01 · Chorley, Lancashire
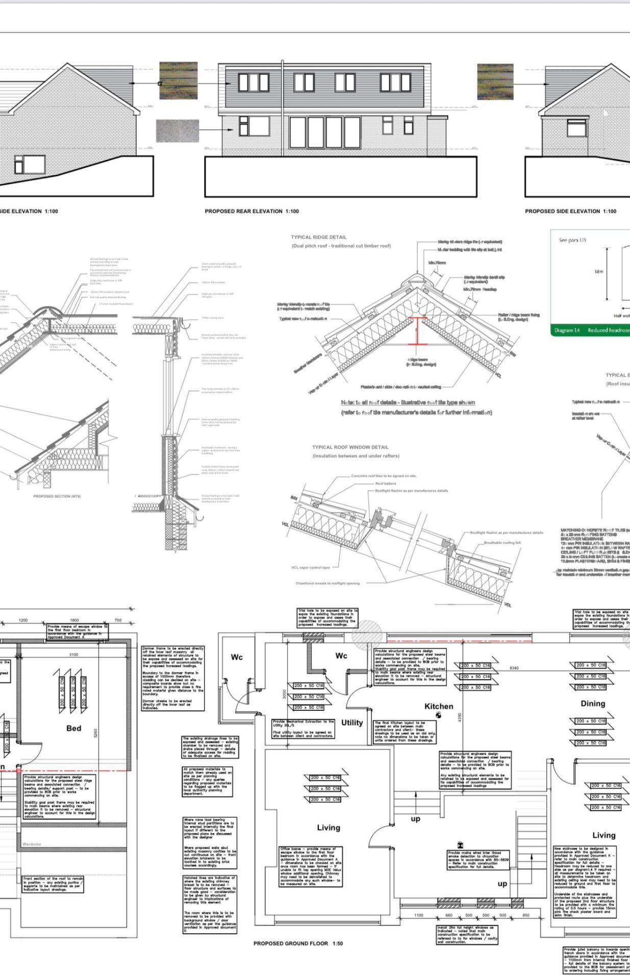
Full Rear Dormer Loft Conversion
Engineer-designed steels, vapour-controlled insulation, oak handrail joinery and integrated wardrobe carcassing.
Before
Disused attic with shallow head height, no insulation and a single small Velux window.
After
Full-width rear dormer adding a master bedroom, walk-in wardrobe and a bright en-suite. Building Control signed off first inspection.





























































































